Bolwerk

Ooit stond hier de kruitfabriek van Muiden, berucht vanwege grote ontploffingen. Nu verrijst er een nieuwe wijk, waar enkele historische panden zijn blijven staan die de sfeer van vervlogen tijden in zich meedragen. Voor deze markante plek ontwierp Gianni Cito een stoer, betonnen, bijna vierkant woon- en werkgebouw, met schitterend uitzicht over het IJmeer.

Programma
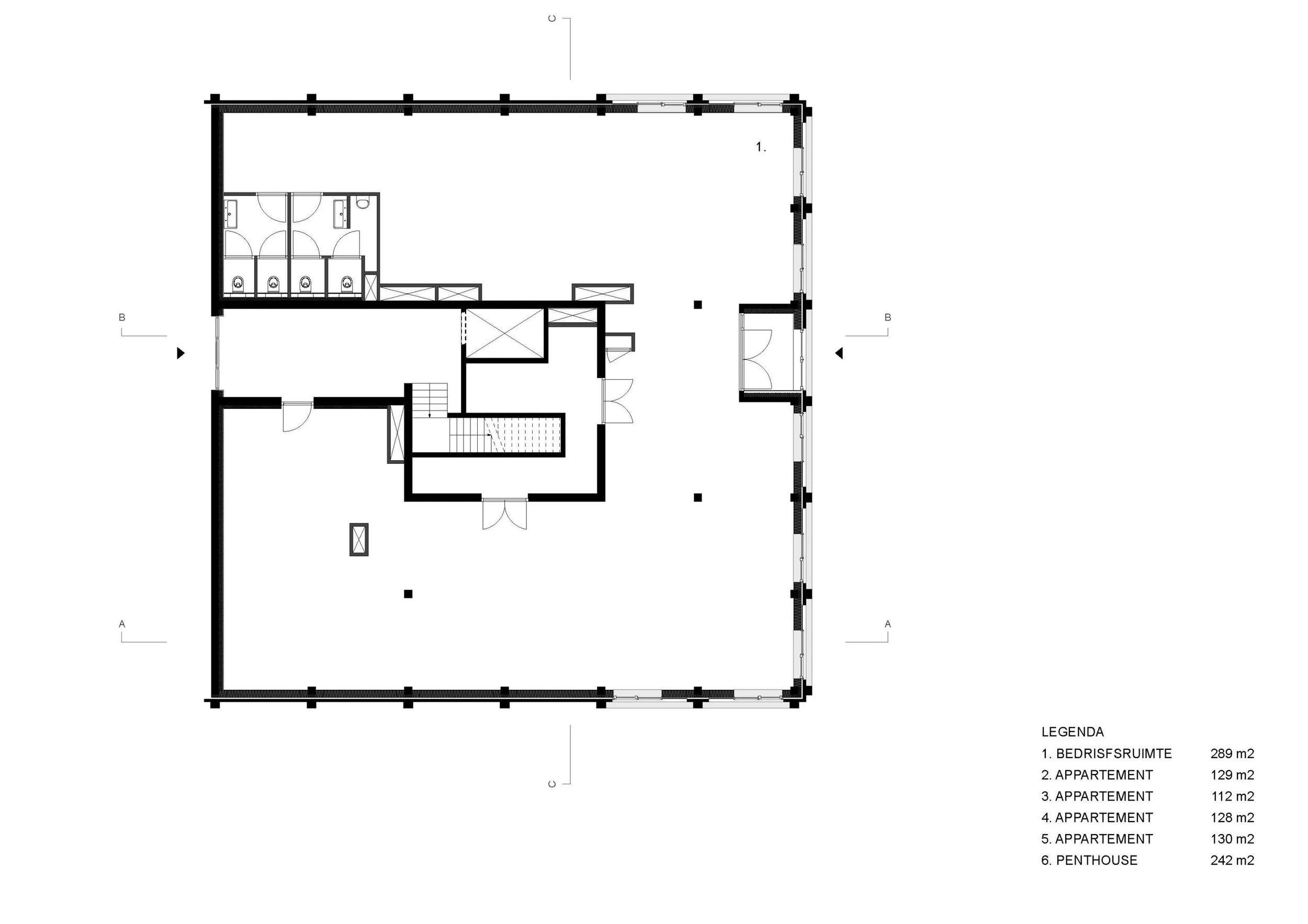
Bedrijfsruimte, 6 appartementen en 1 penthouse

Oppervlak
1.700 m² BVO

Architect
Gianni Cito

Team
Hao Tran, Patrick de Weerd

Jaar
2018 – 2020

Status
Gerealiseerd

Locatie
Muiden

Opdrachtgever
KNSF Vastgoed

Fotograaf
Thijs Wolzak

Landschap
La4sale

Spetterend uitzicht
De nieuwe buurt is landelijk en industrieel, groen en waterrijk. Het gebouw ligt direct aan het park, bij de dijk en op loopafstand van de historische jachthaven met het beroemde café Ome Ko. Alle woningen grenzen aan drie buitengevels en hebben een groot balkon. Alle bewoners hebben een waanzinnig uitzicht over het IJmeer, het park en de jachthaven.

Wonen en sporten
De plint is extra hoog met 3,5 meter, de verdiepingen erboven zijn 3 meter hoog. Beneden komt een sportschool, die door de openslaande deuren verbinding heeft met het aangrenzende park. Binnen en buiten sporten loopt in elkaar over. De tweede, derde en vierde verdieping tellen twee woningen, de bovenste verdieping is een penthouse van 250 m².

Stoer en verfijnd
Het gebouw is opgetrokken uit donkerbruin beton. Met 20 bij 20 bij 17 meter is het bijna een kubus. Het strakke stramien is voelbaar in de woningen zelf en in de ritmiek van de gevel. In de prefab gevel zitten verspringingen en diepe neggen van 30 cm. De verspringingen geven een mooie schaduwwerking, waardoor het gebouw stoer blijft, maar verfijnt oogt.